- 财政部:一季度全国一般公共预算收入60189亿元
- 财政部发布2025年一季度财政收支情况。一季度,全国一般公共预算收入60189亿元,同比下降1.1%。其中,全国税收收入47450亿元,同比下降3.5%;非税收...
终于,经过近半年的等待和装修,我们全家搬进了期待已久的新家。这次装修,我们一共花费了20万元,包括了全部的家具和家电,虽然不是一笔小数目,但看到最终的效果,我们觉得这一切都是值得的。

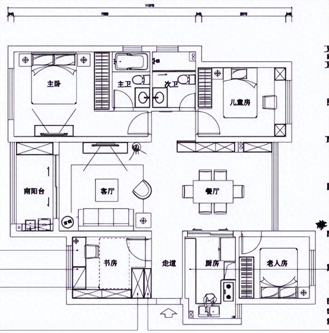
新家是一套120多平米的三居室,空间宽敞,布局合理。在装修前,我们考虑了很多风格,最终决定采用现代简约的设计理念,以实用性和舒适性为主,同时又不失美观和品味。

走进新家,首先映入眼帘的是玄关区域。地面采用了菱形铺设的瓷砖,颜色相间搭配,既美观又耐用。玄关的一边墙壁上,我们设计了嵌入式的鞋柜,紧邻着书房,方便实用。另一边是厨房,与餐厅之间的墙壁上,我们安装了一扇窗户,增加了空间的通透感。


厨房的设计也是我们非常满意的部分。我们选择了通透的玻璃推拉门,既节省空间,又能让厨房的光线更加充足。厨房内部,虽然空间不大,但我们充分利用了每一寸空间,装满了柜子,提供了充足的收纳空间。同时,橱柜的台面采用了大理石材质,既美观又易于清洁。

餐厅的设计同样令人满意。这里有一扇大大的落地窗,视野开阔,光线充足。餐桌椅的设计简约而不失品味,不需要过多的装饰,就能营造出温馨的用餐氛围。在一边的墙壁上,我们还设计了一个餐边柜,提供了额外的收纳空间。


客厅的布置同样简约而不失格调。我们选择了舒适的沙发,体型不大,但坐感极佳。客厅没有设置茶几,这样可以让空间显得更加宽敞。电视背景墙的设计是客厅的一大亮点,采用了漂亮的图案,搭配上两边的盆栽装饰,既生动又自然。


客厅的阳台采用了玻璃推拉门,方便实用。阳台是洗衣晾晒的区域,一端设有洗衣机和洗手盆,使用起来非常方便。

主卧的设计同样令人满意。我们选择了超舒适的床,床靠背柔软,保证了睡眠质量。主卧的卫生间设计也非常有特色,地砖的选择让卫生间显得更加有个性。主卫装了大浴缸,方便泡澡。


书房位于一进门的位置,我们将其改成了次卧,方便招待来访的亲戚朋友。虽然布置简单,但通风采光良好,足够让人满意。

儿童房的设计则是另一种风格,采用了天蓝色的墙漆,显得更加清新自然。儿童房的一体式柜子设计,既解决了书桌和书架的需求,又节省了空间。

公用卫生间的设计同样实用,虽然没有装淋浴房,但挡水台和浴帘的设计,既方便又实用。
总的来说,这次装修的效果我们全家都非常满意。虽然花费了20万元,但包括了全部的家具和家电,我们觉得性价比还是非常高的。在这里,我们也想分享给大家我们的装修经验,希望能够帮助到正在装修或即将装修的朋友们。同时,也欢迎大家提出宝贵的意见和建议,让我们的家更加完美。
